Hoppa till innehåll
Projekt i urval
Alla projekt
Projekt i urval
Alla projekt
Projekt i urval
Alla projekt
Projekt i urval
Alla projekt
Om Oss
Projekt
Hållbarhet
Medarbetare
Kontakt
Om Oss
Projekt
Hållbarhet
Medarbetare
Kontakt
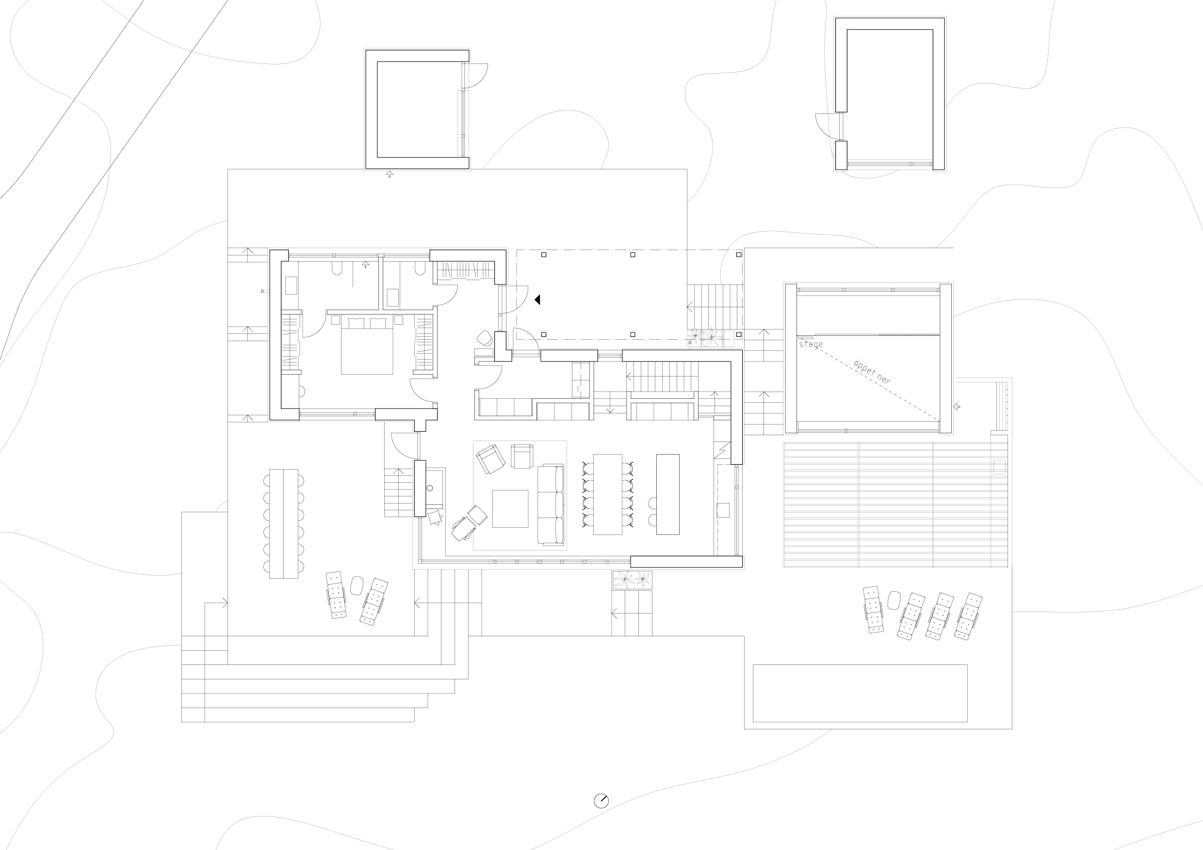
VILLA S, BOSTÄDER